Vorige pagina...
Terugkeer naar Frankrijk
Na zijn huwelijk te Gent met Rachel Ghys, keert Raymond terug
naar Frankrijk met Raoul die dan ongeveer 12 jaar is en Roger die
9 jaar is. Raymond had een voor die tijd uitstekende stiel geleerd van
"koetswerkmaker" bij de familie Stevens in Ledeberg. Daar zou
hij, naar aanleiding van een "concours d'élégance"
(een wedstrijd voor de mooiste autocarrosserieën), opgemerkt geweest zijn
door een bezoeker uit Frankrijk (Calais), een zekere Pottie, die een koetswerkplaats
had in de "rue des Prairies" te Calais die hem zou aangezocht
hebben om voor hem naar Calais te komen werken. Hij ging op dat aanbod in en gedurende
een hele tijd in 1919 - 1920 deed hij wekelijks de verplaatsing met de trein van
Calais naar Gent en omgekeerd. De reis duurde een hele dag. Hij vertelde dat hij
aan de grens te Ghyvelde, waar de reizigers moesten uitstappen, regelmatig door
de douane werd uitgekozen en dat hij zich volledig moest uitkleden om te controleren
of hij geen smokkelwaar bij had. Dit duurde tot hij eens vroeg waarom hij zo dikwijls
werd uitgekozen en of hij er soms als een smokkelaar uitzag. Van toen af lieten
ze hem gerust.
De scheiding van het gezin kon echter niet duren. Raymond had iemand
in Calais leren kennen die na het beëindigen van de oorlog allerlei overschot
van Engels legermateriaal had opgekocht waaronder veel legerbarakken afkomstig
van het Camp Anglais (Engels Kamp) dat gelegen was rechtover de plaats, aan de
overkant van de vaart waar later zijn zoon Raoul zal gaan wonen. Hij kocht
het nodige materiaal en bouwde hiermee een chalet in Coulogne (voorstad van Calais)
in de "rue Pont Trois Planches". De grond had een afmeting van
10 meter breed op 20 meter diep. Het huisje, dat geen verdieping had, was ongeveer
7 meter breed op 10 meter diep en was opgesteld op een tiental meter van de straat.
Achter het huis was er dus nog ongeveer drie meter tot een "watergang"
(term die men in Calais en in heel Frans-Vlaanderen nog gebruikt voor een gracht)
beplant met wilgen. Het water was er nog zeer zuiver en Raoul en Roger
vingen daar nog paling.
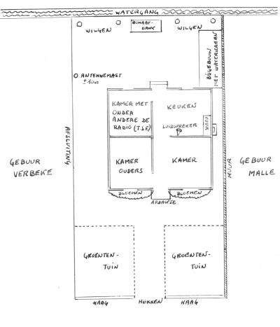
Het huisje bestond uit vier plaatsen : een grotere slaapkamer voor de kinderen,
een kleinere voor de ouders, een keuken en een vierde ruimte. In die vierde ruimte
stond het radiotoestel met een draad verbonden naar een luispreker die in de keuken
stond opgesteld. Raymond was inderdaad één van de eersten
om over een dergelijk toestel te beschikken. We vertellen verder hoe hij daar
aan kwam. In de woning zelf was er geen aansluiting op het water. Er was achteraan
een bijgebouwtje waar wel een waterkraan was. Er was in het begin ook geen elektriciteit.
De verlichting gebeurde met petroleumlampen. Pas rond 1930 kwam er elektriciteit.
Achter het huisje, tegen de "watergang" stond een werkbank opgesteld.
Het huisje stond eerst op palen, ongeveer 30 centimeter boven de grond. Later
werden er betonblokken onder geplaatst.
Plan van het huisje van Raymond te Coulogne in de rue Pont
Trois Planches
(uit het hoofd getekend door XIII.3 Léon De Baets in november 2000)
Rue Pont Trois Planches te Coulogne. Foto's genomen op 15 augustus 1990.
Het rode stapelhuis, ook opgetrokken in metalen golfplaten, staat op het grondstuk
van het huis van Raymond. In de woning links ervan, met typisch Frans dak,
woonde begin de jaren 1920 het gezin Verbeke, buren van Raymond.
Zij hadden twee kinderen Claire en Michel. Claire overleed
op 12-jarige leeftijd kort voordat zij haar Plechtige Communie zou doen.
In het rechter huis ( in het wit) woonde het gezin Malle.
Zij hadden één dochter Andrée, ongeveer van dezelfde
leeftijd als Léon. Zoals bijgaande foto toont, had Raymond het wel
mooi afgewerkt! De metalen buitenwanden waren lichtgroen geschilderd. Binnen waren
de wanden in hout met een kleine spouw van een drietal centimeter tussen de buitenwand
in metaal. De binnenwanden en de houten plafonds waren wit geverfd en werden door
Raymond elk jaar volledig herschilderd met een verfsoort die zodanig bij
het drogen de ogen prikte dat iedereen bijna één dag moest buiten
blijven. Het dak, dat ook uit metalen golfplaten bestond, werd door Raymond
met behulp van een steelborstel zoals de schippers gebruiken, elk jaar ingestreken
met teer die hij ging halen in Calais in de gasfabriek waar het een bijproduct
was van de productie van gas uit steenkool. Wanneer het huisje afgewerkt is verhuist
het gezin dus in 1921 van Gent naar Calais met de trein via Adinkerke en Ghyvelde.
Het huis in Coulogne rue Pont Trois Planches. Van links naar rechts
Rachel Ghys, Raymond, Roger, Raoul. Vooraan Léon
en het buurmeisje Andrée Malle (rechterbuur wanneer men naar het
huis kijkt) Let op de mooie ramen die Raymond gemaakt heeft en op de voordeur
voorzien van een luifel. Die foto is uiteraard verschillende jaren later genomen,
namelijk op 11 augustus 1929, vermoedelijk naar aanleiding van het vertrek van
Roger, die dan 16 jaar is, naar België om er te gaan studeren. De
kinderen Raoul en Roger gaan naar school in Coulogne en daar wordt
ook hun halfbroer Léon geboren op 14 mei 1923. Bij die gelegenheid
komt de familie Ghys (Oscar, broer van Rachel en Léonie,
haar zuster) uit Gent naar Coulogne. Léonie is de doopmeter van
Léon.
De voertaal van het gezin te Coulogne bij Calais was het onvervalste Gentse
dialect dat ook de kinderen Raoul, Roger en Léon perfect
beheersten. De school volgen zij natuurlijk in het Frans. Het was nooit de bedoeling
van Raymond om zich definitief in Frankrijk te vestigen. Hij beschouwde
zich nog steeds als vluchteling en dierf niet teveel te spreken. De gemeentesecretaris
wist echter dat Raymond een oud-strijder was van de oorlog 14-18 en dat
het misschien daarom was dat het gezin niet uit Frankrijk uitgewezen werd. Léon
kreeg soms te horen dat hij daar was "pour manger le pain des Français"
(om het brood van de Fransen op te eten).

Léon in de ongeveer tien meter lange voortuin van het huis in Coulogne.
Foto genomen vanuit de voordeur richting de straat

Claire Verbeke het linker buurmeisje, van dezelfde leeftijd als Léon
en die op 12-jarige leeftijd overleed. Zij zou haar Plechtige Communie doen. Zij
had nog een broer Michel.
De werkgever van Raymond in Calais, de genaamde Pottie gaat echter
failliet. Hij vindt ander werk bij een genaamde Notebaert, een Belg die
zich in Calais gevestigd had als mekanieker-garagist (een zoon zou nog een garage
hebben in de "rue Vauban" in Calais). Daar leert hij een man
kennen met wie hij levenslang bevriend zal blijven : Chaub die een uitstekende
mekanieker was en die vliegtuigmekanieker geweest was tijdens de oorlog 1914-1918.
De Heer Chaub was afkomstig uit de Elzas.
Die Notebaert zou echter een niet al te betrouwbare figuur geweest zijn. Samen
met zijn vriend Chaub besluit Raymond waarschijnlijk rond einde
1924 te gaan werken naar Boulogne bij een firma Delpierre-Gournay in de havenwijk,
reders (vissersvloot), haringrokerij (opengesneden noemde men dat een "skipper",
niet opengesneden een "gendarme") en ook een autocarrosserie
waar men auto's op bestelling maakte. Elke morgen nemen zij in Calais in de gare
des Fontinettes de trein om 6 uur 's morgens naar Boulogne en keren 's avonds
met de trein terug naar Coulogne. Het spoorwegstation was in Boulogne in de onmiddellijke
havenbuurt (lijn Parijs - Calais) : gare Tintellerie. In het station dronken zij
een "bistouille", dit is een koffie met een jenever of cognac
erin.
Plan van de haven van Boulogne
Er liep toen reeds een spoorlijn van Parijs naar Calais met een station onmiddellijk
aan de haven van Boulogne waar Raymond dagelijks heen en weer reisde naar
Coulogne. (uit : "La revue industrielle" juin 1924).
Raymond bracht bijna dagelijks hout mee van het afval uit de schrijnwerkerij
waar houten carrosserieonderdelen gemaakt werden. Daarmee kon men de kolenkachel
aansteken. Ook bracht hij soms vis mee voor zijn gezin wanneer de vangst op de
veiling te Boulogne niet volledig verkocht was. Het was meestal wijting of haring.
Eén enkele keer bracht hij het vlees van een kleine zwaardvis mee, een
vissoort die normaal voorkomt in de tropische en subtropische zeeën maar
soms verdwaalt in de Noordzee. Die vis kan tot 4 meter lang worden en 400 kilogram
wegen. Hij wordt gevangen voor de sport en om zijn vlees. Het gezin zal er wel
goed en veel eten aan gehad hebben. De meest voorkomende vissoorten die door de
vissers van Boulogne echter gevangen werden waren : kabeljauw, stokvis, schelvis,
haring, makreel en de tere wijting die meer en meer geapprecieerd wordt.

Raymond bracht één enkele keer het vlees van een jonge
zwaardvis mee naar huis waar veel aan te eten was.

Zicht op de haven van Boulogne in 1924.
De kleine man in het midden zou Raymond kunnen zijn !
Rachel deed éénmaal per week de was in een uit Gent meegebrachte
houten wastobbe op vier smeedijzeren poten en voorzien van een met de hand aangedreven
systeem waarbij een ronde plaat voorzien van gaten op en neer bewoog en zo het
zeepwater goed door de was spoelde. De kinderen moesten die wastobbe in beweging
houden door aan een groot smeedijzeren wiel te draaien. Tijdens de schoolvakantie
moesten zij ook hout hakken om een wintervoorraad aan te leggen.
Bij de koetswerkmaker te Boulogne stond Raymond aan de tekenplank om
de verschillende carrosserieonderdelen (in hout of in metaal) uit te tekenen.
De auto's werden dus op bestelling met de hand gefabriceerd en op de onderstellen
gemonteerd. Onderstaande foto van 26 januari 1924 toont Raymond achteraan
de werkplaats aan het tekenbord.
Foto van de carrosseriewerkplaats te Boulogne op 26 januari
1924

De carrosseriewerkplaats te Boulogne. Er zijn niet minder dan 28 werknemers op
de foto te zien. Raymond De Baets staat achteraan aan het witte tekenbord
onder de letter C van het opschrift Carrosserie. De vriend van Raymond,
de Heer Chaub moet normaal ook ergens op die foto staan.
Op 14.9.1924 neemt hij te Paris-Plage deel aan een wedstrijd voor carrosseriebouwers
georganiseerd door de "Automobile Club du Nord de la France"
en behaalt daar de bronzen medaille (daar staat echter wel Lille op vermeld).
Tekst op de voorzijde :
AVTOMOBILE-CLVB
DV NORD DE LA FRANCE
Tekst op de keerzijde :
CONCOURS
DE CARROSSERIE AUTOMOBILE
R. D E B A E T S
LILLE - 14 - 9 - 24
Voor een Heer Fouquart had Raymond in de werkplaats
te Boulogne een prachtige auto gemaakt, vermoedelijk op een onderstel van het
merk "Voisin". Op de radiatorstop is er een gevleugeld beeldje.

Een realisatie van Raymond : de wagen van Monsieur Fouquart
Die Monsieur Fouquart zond aan Raymond een foto van zijn wagen
bij de beklimming van de "Cran d'Escalles",een steile baan tussen
Sangatte en Cap Gris Nez.Zou Raymond hebben mogen meerijden ? Monsieur
Fouquart was een vliegtuigmekanieker geweest in de Eerste Wereldoorlog.
Hij was elektricien en radiotechnieker. Men noemde een radio vroeger in het Frans
"téléphonie sans fil" (telefoon zonder draad),
afgekort T.S.F. 's Zondags werkte Raymond te Coulogne ook nog aan auto's
en Monsieur Fouquart kwam soms 's zondags bij Raymond om aan zijn
wagen te laten werken. Het is door toedoen van Monsieur Fouquart dat Raymond
in Coulogne als één van de eersten een "T.S.F." bezat.
Hij had in het nabijgelegen bos Campagne-lez-Guignes een den geveld van wel 10
meter hoog en die achter het huis opgesteld met bovenop een antenne en een draad
die naar de radio liep. Hij had een luidspreker geïnstalleerd en luisterde
ingetogen naar de muziek die in die tijd uitgezonden werd : belcanto. Raymond
zal trouwens tot hoge leeftijd een grote amateur blijven van opera en operettemuziek.
De radio werd gevoed door een batterij bestaande uit een plank met gaten waarin
er buisjes staken onderling verbonden met een draad. Raymond bezat twee
zulke batterijen. Daar het huis nog niet voorzien was van elektriciteit (men verlichtte
zich met petroleumlampen), moest Raoul wekelijks één van
die primitieve batterijen met de fiets naar Calais in de rue des Fontinettes brengen
om ze te laten heropladen. Het is slechts wanneer het huis, door een buurman elektricien
die in dezelfde straat woonde, op het elektriciteitsnet zal worden aangesloten,
dat Raymond zelf een laadtoestel zal aanschaffen om zelf de batterijen
van zijn radio op te laden. Die Monsieur Fouquart zal zich met zijn wagen
doodrijden op een andere steile weg "l'Anglaise".

De auto van Monsieur Fouquart in volle vaart bergop op de "Cran
d'Escalles" tussen Sangatte en Cap Gris Nez. Foto genomen op 24 juli
1927. Tekst achteraan : "A Monsieur De Baets en souvenir du Cran d'Escalles"
le 14/7/27" Getekend : A. Fouquart.
Eénmaal per jaar één week vakantie naar "de Gentsche
Fiesten"
Het was voor Raymond hard werken. Er was toen nog geen wet op de jaarlijkse
vakanties (betaald verlof), noch in Frankrijk, noch in België. Die wet zal
er slechts komen in 1936. Toch is het voor het gezin een absolute plicht en plezier
om jaarlijks naar de "Gentse Feesten" te gaan en van de
gelegenheid gebruik te maken om de familie te bezoeken. Raymond neemt dus
elk jaar één week onbetaald verlof om met zijn gezin naar Gent te
reizen. Zij logeerden in de Sint-Katelijnestraat bij Oscar Ghys, broer
van Rachel. Leon herinnerde zich dat hij eens als kleine jongen
door zijn ouders bij een familielid Merckx gebracht werd die niet ver van
de "Dulle Griet" op de Lange Munt een borstelwinkel hielden. Bij die
gelegenheid worden er natuurlijk ook foto's gemaakt. Van de volgende foto's weten
we niet in welk jaar zij precies gemaakt werden maar ze zijn in volgorde geplaatst
volgens de vermoedelijke leeftijd van de kinderen.

Van links naar rechts :
Roger, Delphine Ghesquière (dochter van Martha De Baets)
en Raoul
De marinekostuumpjes zijn zeer in de mode !
Foto genomen in de tuin van het huis Stroplaan 153,
later genummerd 131 (nu Burggravenlaan 53).

Raoul en Roger nu opnieuw in een wit marinekostuumpje

De dame links is niet te herkennen. Roger en Raoul (met zijn pet
in de hand), Raymond en Rachel. Deze foto is blijkbaar genomen in
een hoevetje. Er steekt een paardenhoofd uit de verste deur uit.
De kinderen groeien op


Foto genomen op dezelfde datum als de vorige. Van links naar rechts :
Roger, Léon, zittend Gustaaf Nicaese zoon van Pierre
Nicaese en Elvire De Baets, staande Delphine Ghesquière
dochter van Karel Ghesquière en Martha De Baets, rechts Raoul
1924 : Raoul is 13 jaar, Roger is 11 jaar

Op vakantie naar Gent. De familie hier gekiekt in de
boomgaard van Pier De Craemer te Drongenbrug .
Foto vermoedelijk uit 1928-1929

Pasfoto's van Raymond en Rachel vermoedelijk
rond de leeftijd van 40 jaar (rond 1930 ?)
Om nog even terug te komen op de Gentse Feesten : Léon vertelde
dat hij met zijn broer Roger en zijn nicht Delphine, dochter van
Martha De Baets en Charles Ghesquière naar de Gentse Feesten
ging om haar in de mogelijkheid te stellen haar toekomstige echtgenoot te ontmoeten
: Jean Rousseau die ook officier zal worden en over wie we het nog gaan
hebben in de biografie van Roger.
De economische toestand in de visserij was echter niet steeds rooskleurig.
Er was crisis geweest in 1921-1922 en in 1927 is er een korte crisis wegens
een sterke prijsstijging van de steenkool. De trawlers werden inderdaad meestal
aangedreven met stoommotoren. De reders hebben niet steeds de nodige financiële
middelen om hun vissersboten te onderhouden en verschillende eenheden worden regelmatig
uit de vaart genomen. Raymond heeft toch werk om, als bekwame schrijnwerker,
de, dikwijls 25 jaar oude boten te herstellen (de meeste dateren van vóór
de Eerste Wereldoorlog !). Hij werkt er echter vooral in de werkplaats waar autokoetswerken
worden gemaakt. Voor het transport van de vis in de haven van Boulogne werd ook
gebruik gemaakt van camions aangedreven met elektrische motoren! Iets voor Monsieur
Chaub!

Elektrische camion Crochat A3, 3 ton -- Elektrische camion Crochat A5, 6 ton
(Illustratie uit "La Revue Industrielle" -- Juni 1924
Archief Kamer voor Handel en Nijverheid, Boulogne)
Volgens het verhaal van Raoul heeft Raymond ook veel "koetswerken"
gebouwd voor de camions van de haven van Boulogne. De reeds vermelde vriend van
Raymond, de Heer Chaub, was een uitstekende mekanieker. Zoals reeds
eerder verteld was hij vliegtuigmekanieker geweest tijdens de Eerste Wereldoorlog.
Zij werken samen aan de voertuigen.
In 1931 storten de prijzen van de vis ineen. De inkomsten van de reders smelten
weg en veel bedrijven gaan failliet of moeten een groot deel van hun vissersboten
uit de vaart nemen. In 1934 is er weer een algemene crisistoestand. Niet minder
dan dertig trailers worden aan wal gehouden in de achterhaven van Boulogne of
in Calais. In 1936 bereikt men het dieptepunt van de crisis. Daarbij komt nog
in juni 1936 een staking van de zeelieden en in oktober van dat jaar volgt een
zware devaluatie van de Franse frank : het gespaarde geld en ook de waardepapieren
verliezen een groot deel van hun waarde.
Het gezin reist dat jaar naar Luik waar Yves, de eerste zoon van Roger
geboren was op 4 juli 1936. Raymond, die zeer hoog aangeschreven was bij
zijn werknemer en goed betaald, liet wekelijks in Calais de bankier langskomen
om zijn geld in waardepapieren te beleggen. Met de grote crisis van 1936 was hij
dus zijn opgespaard vermogen kwijtgeraakt en besluit hij in juli 1938 terug naar
België te keren.
Maar eerst volgen we nog de gebeurtenissen met de drie zonen.
Roger (volgt sub XIII.2) was reeds eerder, op 16-jarige leeftijd
in 1929, naar België teruggekeerd om er te studeren. We zullen dat verhaal
in detail bespreken in zijn biografie.
Raoul had besloten meubelmaker te worden. Hij had hiervoor de nodige
opleiding gekregen in Calais. In 1933 vervult hij zijn legerdienst in Gent in
de Leopoldskazerne.

Raoul tijdens zijn legerdienst in het Kamp van Beverlo.
Foto genomen op 4 mei 1932.

Raoul De Baets tijdens zijn legerdienst in de Leopoldskazerne in Gent,
op bezoek bij de familie in de Stroplaan 131.
Tijdens zijn legerdienst in Gent volgt hij avondles in architectuur. Hij is
een goed student. Hij leert in Gent een meisje kennen. Zijn ouders zouden niet
liever willen dat hij in België blijft en daar ook werkt zoekt. Maar in Coulogne,
in dezelfde straat "rue Pont Trois Planches" woonde een gezin
met een dochter: Marguerite Vache, die een oogje had op Raoul die
ook eens in Belgisch uniform met verlof naar Coulogne gekomen was.
Wanneer zijn broer Roger ook eens in uniform met verlof naar Coulogne
komt, vraagt dat meisje hem naar nieuws over Raoul. Wanneer Raoul
dan zijn legerdienst beëindigd heeft en ook zelf naar Coulogne komt, tracht
Marguerite zoveel mogelijk contact met hem te hebben. Achter het terrein
van het huis van het gezin De Baets, over de "watergang", was
er een weide. Raoul had zijn werkbank achter het huis geïnstalleerd.
Marguerite die konijnen hield kwam in de weide voer voor haar konijnen
snijden om zoveel mogelijk in de aandacht van Raoul te komen.
Raoul had wel besloten om terug naar België te keren. Op een dag
is hij van plan naar Gent te reizen om er werk te zoeken (met de hulp van tante
Elvire De Baets bij wie hij verbleef). Er was echter bij Marguerite
Vache een communiefeest. In plaats van naar Gent te reizen, waar zijn ouders
dachten dat hij naartoe was, blijft hij op dat communiefeest tot laat in de nacht.
Hij durft uiteraard niet naar huis gaan slapen en overnacht bij Madeleine Vache,
de zuster van Marguerite.
Zijn ouders zullen hem na dit feit niet meer binnenlaten en hem zeggen dat
hij dan maar bij die mensen moet blijven. Zijn kleren en persoonlijke bezittingen
moet hij zelfs gaan halen vergezeld door de veldwachter... Op 12 juli 1933 huwt
hij met Marguerite Vache.

Huwelijk van Raoul De Baets met Marguerite Vache
Alle contacten met zijn ouders en met zijn jongere broer waren verbroken alhoewel
zij slechts op een tweehonderdtal meter van elkaar woonden. In volle crisisjaar
1936 vond hij werk in Duinkerke en later in Calais waar hij een schrijnwerkerij-meubelmakerij
begon. Het is slechts wanneer zijn ouders in juli 1938 definitief naar Gent zullen
terugkeren dat hij de toelating zal krijgen om van hen afscheid te nemen.
Raoul en Marguerite zullen twee dochters krijgen : Monique
en Anne-Marie.
Van links naar rechts: Raoul De Baets, zijn dochter
Monique, zijn vrouw Marguerite en zijn dochter Anne-Marie.
De derde zoon Léon behaalt in juni 1935 zijn "Certificat
d'Etudes Primaires" en volgt de lessen aan de "Ecole Primaire
Supérieure" in Calais in 1935-1938. Zoals we verder zullen zien
keren de ouders met Léon in juli 1938 terug naar Gent waar Léon
die dan 15 jaar oud is, zijn studies zal verder zetten...
Vervolg Raymond...